Etherna Homes II

Calle Villa Borguese 0
Estepona, MALAGA

New-Build Etherna Homes II
video

Equipment

+
  • FRONT LINE GOLF
  • GARDEN AREA
  • GOURMET ROOM
  • GYM
  • SEA VIEWS
  • SWIMMING POOL

Calle Villa Borguese 0

Estepona, MALAGA

New development in Estepona.

Etherna Homes II is an exclusive residential complex consisting of 144 one-, two-, and three-bedroom homes spread across six low-rise buildings. Its avant-garde, modern design blends seamlessly into the natural surroundings, offering residents spectacular views of Estepona Bay and the Valle Romano golf course.

The south orientation of the houses ensures that all of them have excellent luminosity, making the most of the hours of natural light. The large windows not only provide panoramic views, but also create a bright and spacious ambience, increasing the overall feeling of comfort. The living areas are designed to create a seamless connection with the outdoors, further extending the sense of space.

The residential complex offers a full range of amenities including a swimming pool, an indoor gym and a gourmet lounge. In addition, residents can enjoy extensive green areas with native species that enhance the natural beauty of the area. Security and privacy are a priority, the complex is gated and guarded by security, guaranteeing tranquillity and exclusivity.

Storage room and parking included.


Available houses

Floor Bedrooms Bathrooms Surface Terrace Price * Drawing      
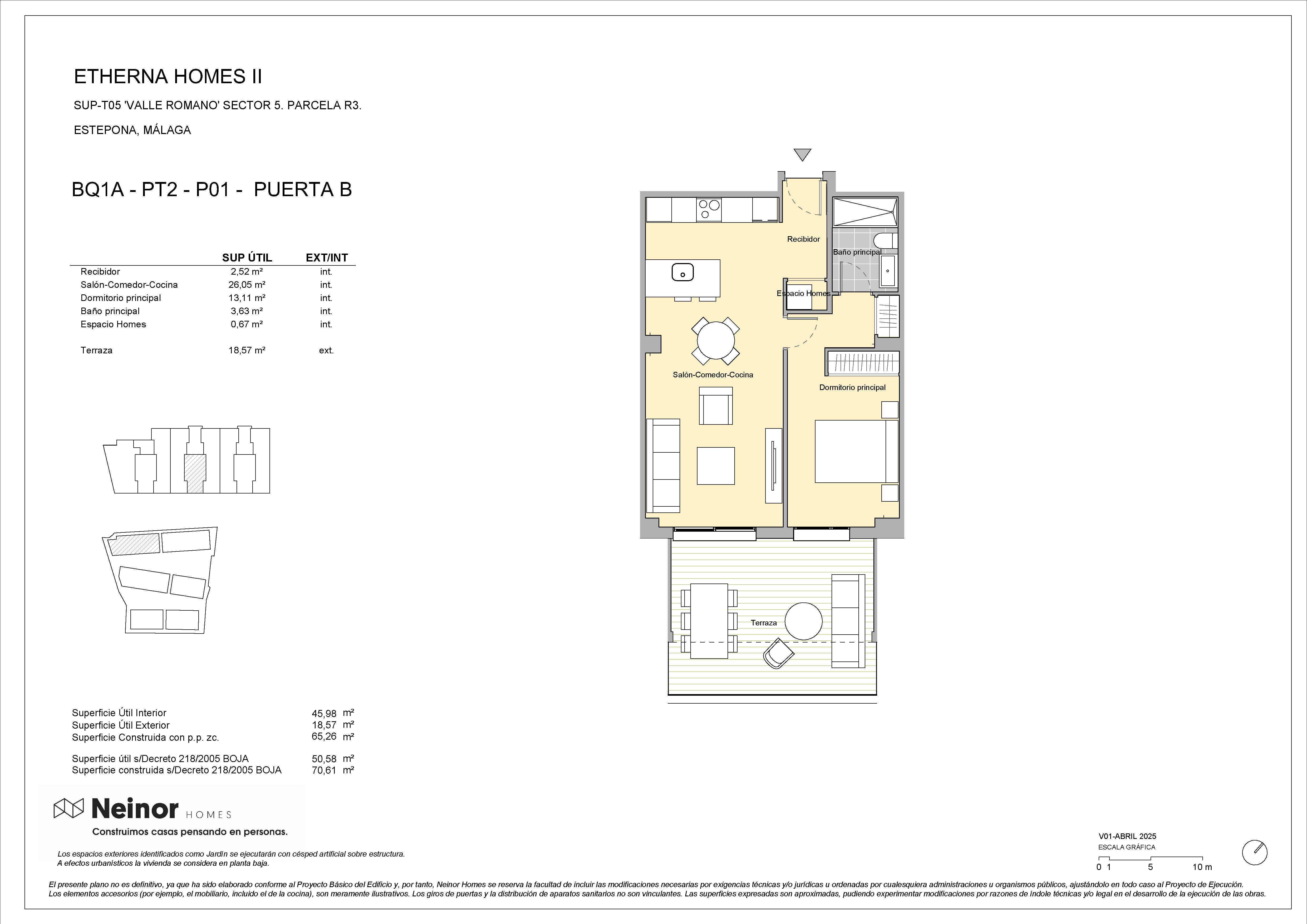
Property - Floor 165.26 sqm1165.26 sqm18.57 sqm€ 215,000 ViewContact +
Property - Floor 265.26 sqm1165.26 sqm13.71 sqm€ 289,000 ViewContact +
Property - Ground floor76.14 sqm1176.14 sqm30.24 sqm€ 370,000 ViewContact +
Floor Bedrooms Bathrooms Surface Terrace Price * Drawing      
Property - Floor 1107.30 sqm22107.30 sqm20.01 sqm€ 319,000 ViewContact +
Property - Floor 1107.27 sqm22107.27 sqm20.05 sqm€ 325,000 ViewContact +
Property - Ground floor105.10 sqm22105.10 sqm32.16 sqm€ 327,000 ViewContact +
Property - Floor 2110.21 sqm22110.21 sqm14.69 sqm€ 345,000 ViewContact +
Property - Floor 2107.89 sqm22107.89 sqm14.71 sqm€ 360,000 ViewContact +
Property - Ground floor105.99 sqm22105.99 sqm36.10 sqm€ 372,000 ViewContact +
Property - Floor 1107.33 sqm22107.33 sqm19.98 sqm€ 375,000 ViewContact +
Property - Floor 291.22 sqm2291.22 sqmNo€ 405,000 ViewContact +
Property - Penthouse87.97 sqm2287.97 sqm39.67 sqm€ 406,000 ViewContact +
Property - Ground floor101.54 sqm22101.54 sqm34.40 sqm€ 416,000 ViewContact +
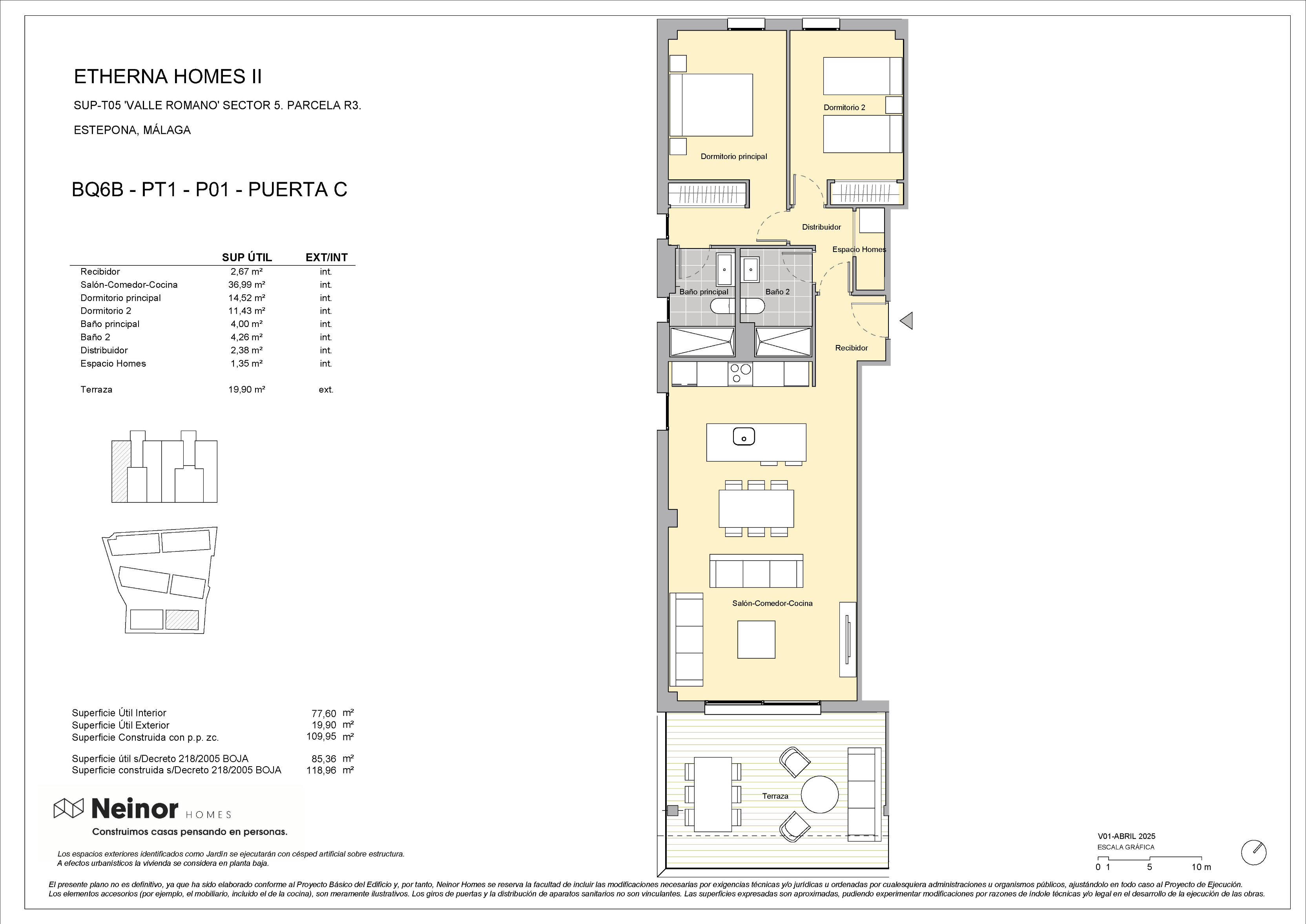
Property - Floor 1109.95 sqm22109.95 sqmNo€ 433,000 ViewContact +
Property - Floor 2111.40 sqm22111.40 sqmNo€ 446,000 ViewContact +
Property - Penthouse99.97 sqm2299.97 sqm45.40 sqm€ 508,000 ViewContact +
Floor Bedrooms Bathrooms Surface Terrace Price * Drawing      
Property - Floor 2130.00 sqm32130.00 sqm28.03 sqm€ 484,000 ViewContact +
Property - Floor 2134.23 sqm32134.23 sqm28.67 sqm€ 558,000 ViewContact +
Floor Bedrooms Bathrooms Surface Terrace Price * Drawing      
Property - Ground floor76.14 sqm1176.14 sqm30.24 sqm€ 370,000 ViewContact +
Property - Ground floor105.10 sqm22105.10 sqm32.16 sqm€ 327,000 ViewContact +
Property - Ground floor105.99 sqm22105.99 sqm36.10 sqm€ 372,000 ViewContact +
Property - Penthouse87.97 sqm2287.97 sqm39.67 sqm€ 406,000 ViewContact +
Property - Ground floor101.54 sqm22101.54 sqm34.40 sqm€ 416,000 ViewContact +
Property - Penthouse99.97 sqm2299.97 sqm45.40 sqm€ 508,000 ViewContact +
* V.A.T. must be added to these prices at the rate in effect at the time of accrual. The current rate is 10%.

Contact us

900 11 00 22

Let us call you

31%

45/144 Sold

Punto de Venta Neinor Store Estepona

Solicita ya tu cita para conocer nuestras viviendas

Calle Villa Borghese s/n bajo 
29680 Estepona

Junto al Club de Golf Valle Romano

Lunes a viernes 9.00h a 14.00h y 16.00h a 19.00h

Sábados 10.00h a 14.00h

900110022

Only by appointment

What would your ideal house be?

Tell us

You might be interested in

New-Build Santa Clara Homes

Santa Clara Homes

Marbella

New-Build Selene Homes

Selene Homes

Malaga

New-Build Etherna Homes

Etherna Homes

Estepona

New-Build Bliss Homes

Bliss Homes

Casares

New-Build Bayside Homes

Bayside Homes

Estepona

New-Build Evergreen Homes

Evergreen Homes

Mijas

New-Build Celestia Homes

Celestia Homes

Estepona

New-Build Creative Homes Bulevar II

Creative Homes Bulevar II

Malaga

New-Build Creative Homes Bulevar

Creative Homes Bulevar

Malaga